235 Balliol Street
With BDPQ Quadrangle
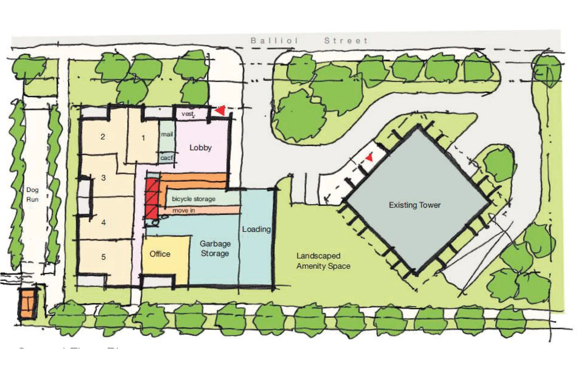
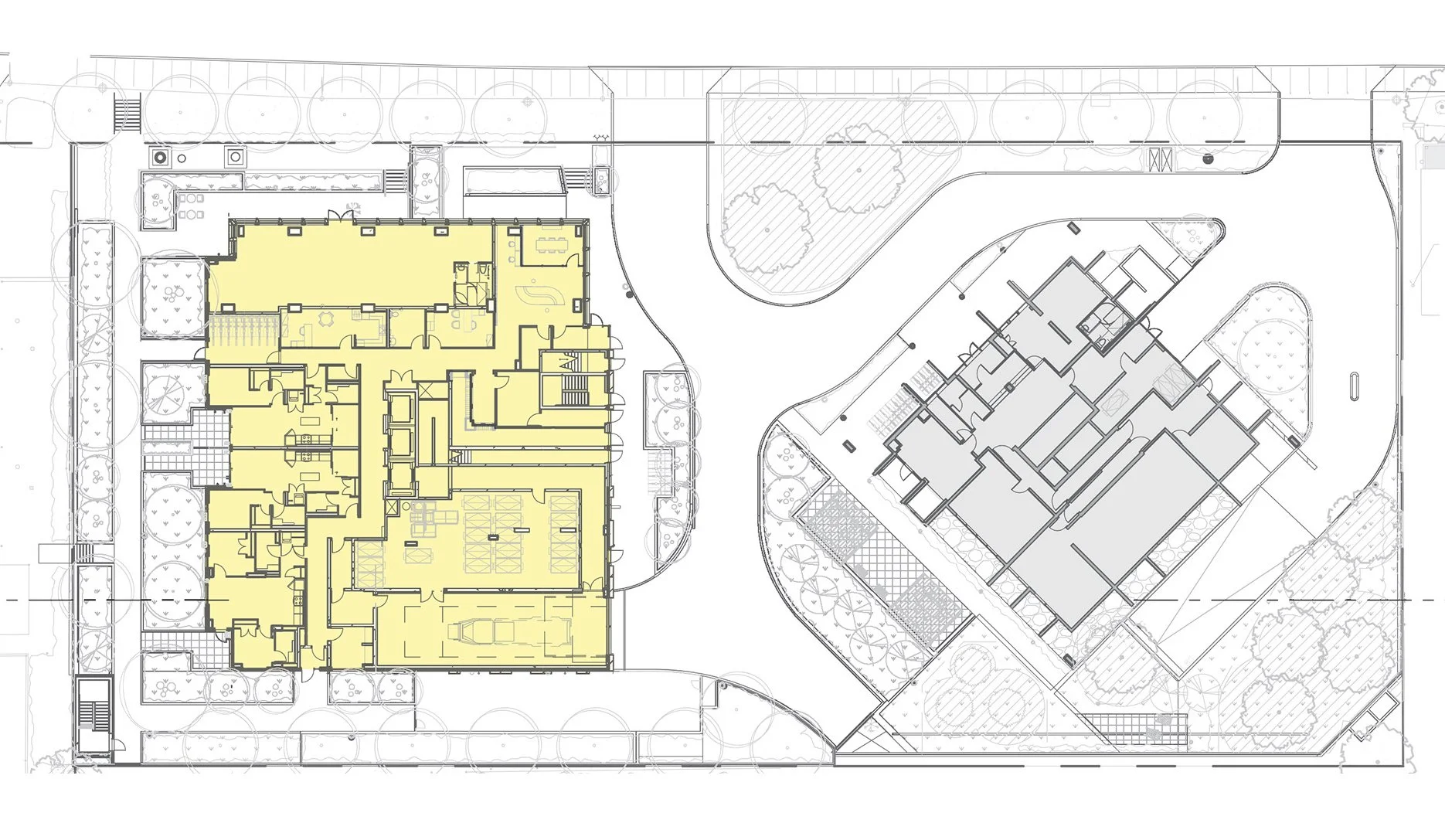
235 Balliol is 27-storey purpose-built rental building in midtown Toronto. The existing site contains two storeys of underground parking with a 26-storey 1960’s era apartment building on the eastern half of the site. The proposed intervention retains the existing building, while demolishing half of the underground parking structure and infilling with the new tower.
Balliol Steet is situated in a rapidly densifying residential neighbourhood with mature trees, walkable streets, and transit connectivity. The proposed development underwent rigorous community consultation, resulting in unique programmatic components such as a daycare, increased amenity spaces, and an accessible mid-block pedestrian connection designed to accommodate large plantings and public art.
Special attention was paid to the ground floor plane to maintain exiting trees and green spaces, as well as improved exterior amenities. A new pedestrian mid-block connection runs through the site connecting Balliol Street to Pailton Crescent to the south. The mid-block connection required extensive planning with the city and adjacent properties to meet the required easement, grading, and accessibility requirements in a way that would bring beauty and connectivity to the community.
Other key moments required careful design work, such as the primary residential and retail entrances. The glazed façade of these entrances at the ground floor punctuates the aesthetic of the heavy masonry podium. Through a series of iterative sketches, the residential entrance is further accentuated with a suspended glass canopy integrated into the fascia above the glazed entrance. Similarly, the 5th floor exterior amenity space underwent a series of design explorations. The resulting exterior trellis provides an elegant solution to wind-mitigation, while providing a visual accent above the podium levels of the building.
235 Balliol is currently under construction and the project team is performing Contract Administration. Expected completion is 2025.



